STUDIO
ONE PLACE MULTI SHOOTING

국내 최고 수준의 멀티 스튜디오

대형 예능, 음악방송 등은 물론 VFX, 영화, 드라마 등 모든 컨텐츠 제작 인프라를 제공합니다.
최적의 스펙(넓은 면적, 높은 유효층고, 500kw수전, 3m 간격 전동바텐, 건축음향(STC68, NC 41), 냉난방, 와이어캠 앵커 등) 및 다수의 대기실 등 부대시설을 제공합니다.
  • 부지면적 약 8,700평
  • 건축면적 약 3,156평
  • 연면적 약 4,036평
  • 구성 스튜디오 4개 동 및 운영동
  • 최고높이 약 22m
  • 주차대수 167대 +

스튜디오 배치도

4개동의 스튜디오로 구성되어 있으며 면적은 스튜디오 전용 + 부대시설 면적 기준입니다.
화물동선
승용동선
스튜디오 전체 면적 전용 면적 유효 층고 수전 용량 건축 음향
Studio A 1,100평 900평 15m 500kw STC 68 / NC 41
Studio B 700평 500평 13m 500kw STC 68 / NC 41
Studio C 950평 700평 15m 500kw STC 68 / NC 41
Studio D 650평 450평 15m 500kw STC 68 / NC 41
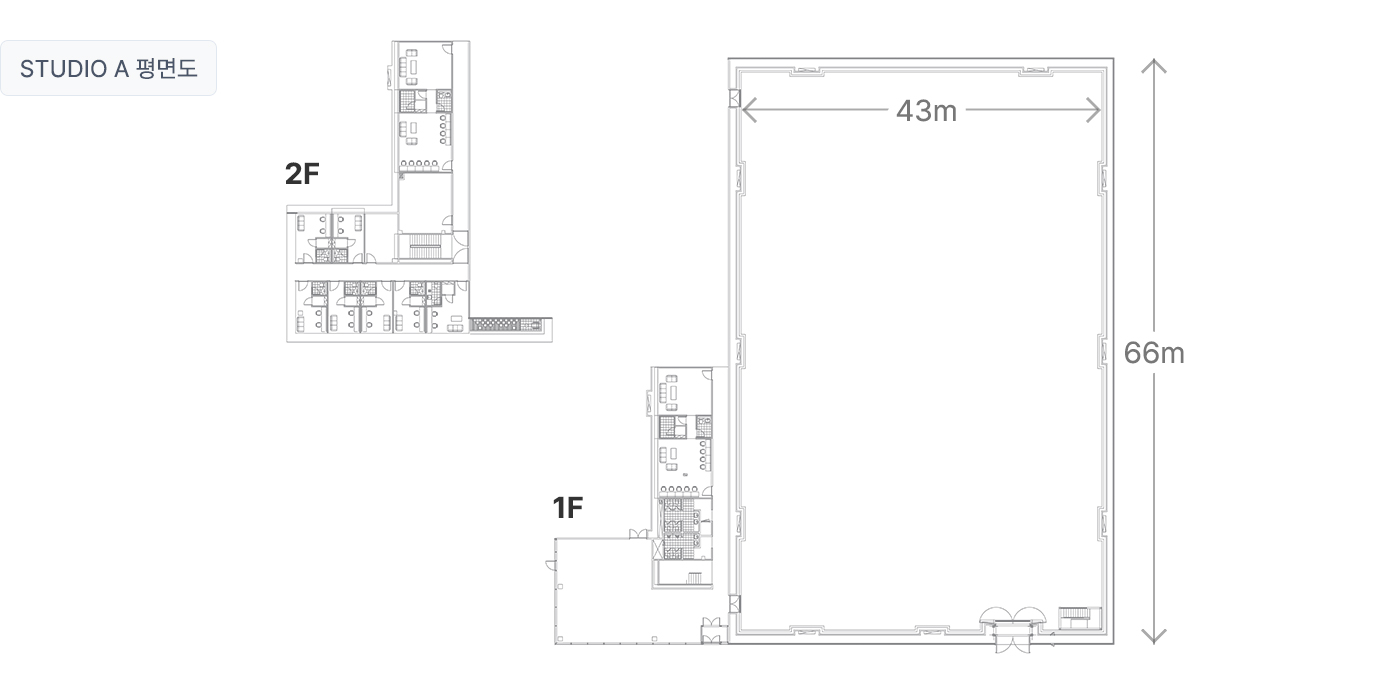
스튜디오 A 평면도

STUDIO A

  • 공급면적1,100평
  • 전용면적900평
  • 유효층고15M
  • 수전용량500kW
  • 건축음향NC 25, STC 68
  • 와이어캠 앵커4개
  • 설비스튜디오 내 상수인입 및 배수설비
부대시설
  • 대형대기실 4
  • 개인대기실 7
  • 다목적공간 1
  • 회의실 1
  • 의상실 1
image description
스튜디오 내부 전경
image description
전동바턴(3m간격)
image description
화물차량 출입구
image description
다목적공간(로비)
image description
VIP 대기실
image description
개인 대기실
스튜디오 B 평면도

STUDIO B

  • 공급면적700평
  • 전용면적500평
  • 유효층고13M
  • 수전용량500kW
  • 건축음향NC 25, STC 68
  • 와이어캠 앵커4개
  • 설비스튜디오 내 상수인입 및 배수설비
부대시설
  • 대형대기실 4
  • 개인대기실 4
  • 다목적공간 1
  • 회의실 1
  • 의상실 1
image description
스튜디오 내부 전경
image description
전동바턴(3m간격)
image description
화물차량 출입구
image description
다목적공간(로비)
image description
VIP 대기실
image description
개인 대기실
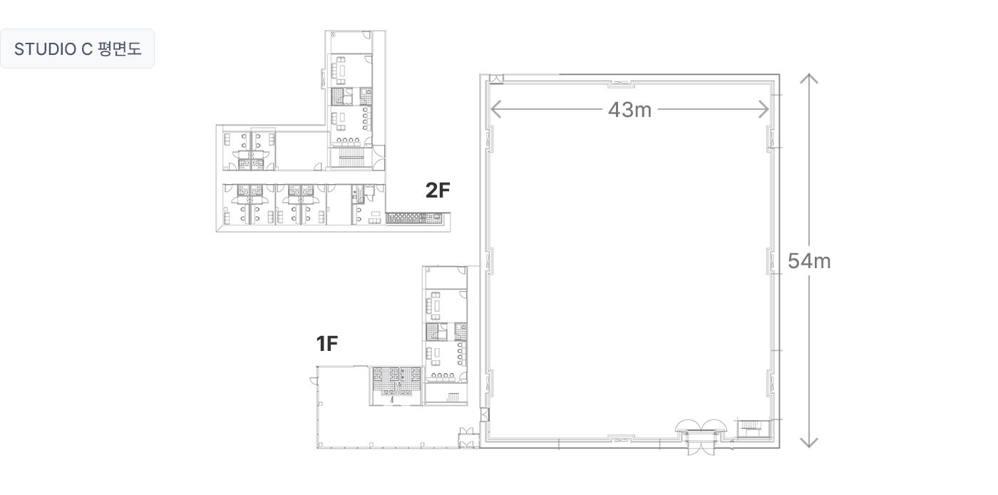
스튜디오 C 평면도

STUDIO C

  • 공급면적950평
  • 전용면적700평
  • 유효층고15M
  • 수전용량500kW
  • 건축음향NC 25, STC 68
  • 와이어캠 앵커4개
  • 스턴트와이어 앵커8개
  • 설비스튜디오 내 배수설비
부대시설
  • 대형대기실 4
  • 개인대기실 7
  • 다목적공간 1
  • 회의실 1
  • 의상실 1
image description
스튜디오 내부 전경
image description
전동바턴(3m간격)
image description
화물차량 출입구
image description
다목적공간(로비)
image description
VIP 대기실
image description
개인 대기실
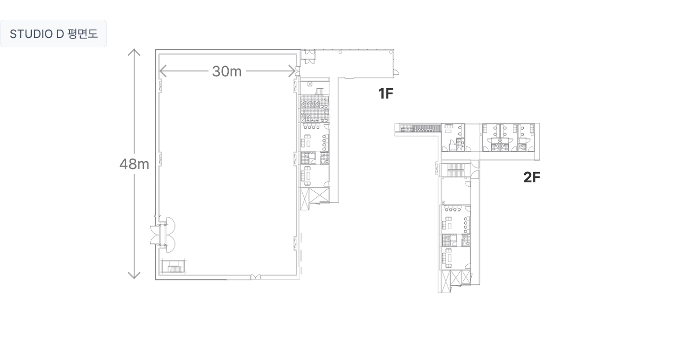
스튜디오 D 평면도

STUDIO D

  • 공급면적650평
  • 전용면적450평
  • 유효층고15M
  • 수전용량500kW
  • 건축음향NC 25, STC 68
  • 와이어캠 앵커4개
  • 설비스튜디오 내 상수인입 및 배수설비
부대시설
  • 대형대기실 4
  • 개인대기실 4
  • 다목적공간 1
  • 회의실 1
  • 의상실 1
image description
스튜디오 내부 전경
image description
전동바턴(3m간격)
image description
화물차량 출입구
image description
다목적공간(로비)
image description
VIP 대기실
image description
개인 대기실

스튜디오 대기실

스튜디오별로 VIP 대기실 4개소(1층 2개소, 2층 2개소)와 개인 대기실 4~7개소, 의상실 1개소, 회의실 1개소, 다목적 공간 1개소가 마련되어 있습니다.
모든 대기실(VIP, 개인 등)에는 개별 화장실이 포함되어 있습니다.
다목적공간
대기실-VIP
대기실-VIP
대기실-개인
의상실
회의실
공용화장실(남여구분)

기타 지원시설

주차 공간 167대 + α와 중계차 및 발전차 공간이 확보되어 있으며, 운영동 1층에는 근생시설, 2층에는 사무실이 위치하고,
스튜디오 외에는 다용도로 활용 가능한 지원공간(1,500평)이 있습니다.
중계차
발전차